The Teenagers Retreat 11.7m²
The Teenager’s retreat is a 3.9m x 3m versatile back yard cabin which is the perfect size for a home office, spare bedroom, beach cabin etc. This cabin comes with a stylish 1500mm verandah attached and is made from solid 40mm thick timber.
Some of our clients use this cabin kit as a spare room, teenagers retreat, camping hut, kids play room, garden shed, losmen, massage room or even as a sauna.
This cabin comes as a kit only. Kitchen, bathroom, electrical, plumbing and other items are not included in the kit price. Scroll through the images to see several cabins.
NSW council regulations now allow cabins up to and including 20m2 in your back yard without council approval. Conditions apply. Click here to see legislation
Usage Ideas for your Timber Cabin
This size is common to be used as a home office for one or more people. Plenty of room for several desks and a meeting table with a small kitchenette and bathroom.
This is a broad catergory. Visiting relatives from out of town, expanding families needing more room, teenage retreat, divorcee accomodation (it happens), even Air BnB rentals or local traveling workers accomodation. Use for your own needs or rent it out as an income source.
A great space for a pool table, or a big lounge and TV, so you can kick back and enjoy family and friends in a safe, casual and entertaining environment.
Enjoy the ability to potter in your favourite hobbies in your own dedicated space. Art Studio’s, Pottery, Sewing, Beauty Rooms, Massage. It makes a great ‘chill out’ space to read a book, Tutor Music or even Home Schooling. Relax and Recharge with some soft music and a cuppa tea to have a break from the day to day grind. Plenty of clients say their cabin is their favourite “Happy Place” away from the day to day grind.
Nothing beats a dedicated space to work on your favourite hobbies. If your current shed is full of family “items” and doesn’t look like changing anytime soon, enjoy the new dedicated workspace and great size for your gardening passion or computer repairs, or whatever you like doing. Its really up to you.
Cabin Specs
Detailed List of Cabin Specs
Complete Cabin Kit
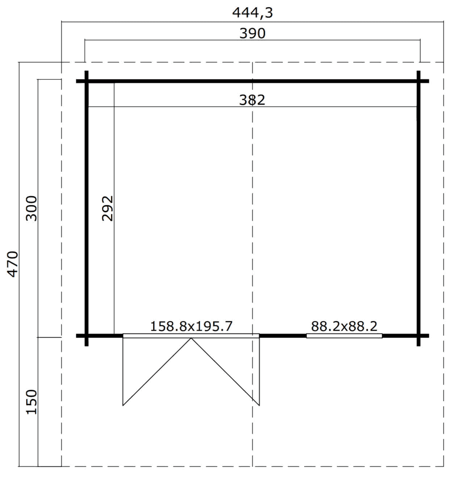
Overall Floor Space 3m x 3.9m = 11.15m² in total. Also included is a 3.9m x 1.2m wide Verandah. Total combined area = 16.2m²
Bathroom Space
N/A with this cabin
Floor Bearers
140mm x 45mm H3 treated, resistant to moisture and termites.
Walls
Cut to size, 40mm T&G (Tongue & Groove) Timber. Ready to Assemble, then Seal and Paint.
Flooring
18 x 90mm Tongue & Groove (T&G) Solid Timber Flooring.
Roof Beams
150mm x 40mm, Full Span for N3 wind rating.
Roof
18mm timber tongue and groove ceiling boards.
Colorbond roof in a colour of your choice (from the CORE colour range).
Other Colorbond finishes available at extra cost.
Guttering available as an optional extra.
Timber Posts
Used in the sub-floor construction. 125mm round treated pine H4 posts at 800mm in length per post.
Windows
The standard Teenagers Retreat Kit comes with 1 Single Glazed Timber Window.
Single Window – 882 x 882 mm
Front Door
Double Door, Half Glass – 1588 x 1957 mm with handles and locks is included in the standard Teenagers Retreat package.
Verandah
19mm solid treated timber floor at 3.9m wide x 1.2m deep with Horizontal verandah rails as main per photo.
Building Plans
Easy to Follow Building Plans are included with the cabin kit. We also have a range of instructional videos to help DIY’ers build the cabin step by step.
Sub Floor Base Kits
| Our standard base kit is included in the price, But Note: Base kits can vary in price due to site specifications. Cabin heights off the ground can add additional post length. If soil tests are required, some hole diameters and depths may vary and some site specific engineering may be required depending on your cabin usage. We will advise if any variation in price is required, but it is not common that we need to add some to the cabin kit price. |
Additional Windows and Doors
Additional Windows and Doors can be added into one of our standard designs. We would advise the price once we have discussed the options available. Adding or removing items from a standard kit may result in a significantly longer delivery time, as the additions or deletions need to be catered for at the factory as a one off build.
DIY - Handy Info
If you have had reasonable experience in DIY projects, then our cabin kits are very straight forward and easy to assemble. If your kit does require council approval then you can DIY as a licensed ‘Owner Builder’ or enlist the help of a licenced, local Carpenter or Builder.
Sometimes it is a better use of your valuable time and more cost effective to have our installation team come and install it for you. Prices for installation are located on this page. This cabin takes about 1 week onsite for our installers to complete the cabin build to lock-up stage.
Delivery
Cabin Kit delivery cost depends on several factors. Geographic location, type of cabin kit, access for the crane truck. If you cant wait for a cabin and want it now, check out our ‘In-Stock’ cabins page on this website
Delivery
Anywhere in Australia Possible- Delivery price depends on a few factors. Your geographical location, crane truck access on your site and the exact content of your cabin kit.
Steel Posts
Upgrade from H4 Timber Posts- 800mm 75mm x 75mm galvanised steel posts
- Longer posts calculated at $30/metre
Installation
Our Installers build it to lock-up stage- Cabin is installed to lock-up stage
- price does not include electrical, plumbing, painting, or any kitchen or bathroom fixtures or fittings.

